Mr.Pieter Cornelisz. Vermaatlaan 28

te Poortugaal

€ 790.000,-- Kosten Koper

Wilt u wonen aan de mooiste laan van de rustige woonwijk “Valckesteyn” in Poortugaal? Dit is uw kans! Deze ruime 2-onder-1kapwoning beschikt over een ruime woonkamer, eetkamer, keuken, 4 slaapkamers (5 mogelijk), luxe badkamer, kantoor- en wasruimte. Verder is er een sfeervolle tuin op het oosten met overkapping en een ruime oprit met toegang tot de garage met elektrische deur aan de voorzijde. Dit fijne huis is van alle gemakken voorzien met o.a. een houten vloer, airconditioning en 16 zonnepanelen.

Direct aan het einde van de straat wandelt u de prachtige natuur van het “Valckesteynse Bos” in. In de KINDVRIENDELIJKE WIJK treft u verschillende speelgelegenheden voor kinderen en het metrostation van Poortugaal. Basisscholen en het dorpscentrum van zowel Poortugaal als Rhoon bereikt u binnen enkele fietsminuten.

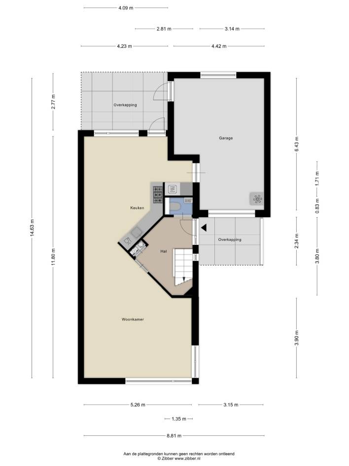
INDELING:

Begane grond: Zijentree, ruime hal met meterkast (8 groepen), trapopgang, toilet.

De ruime woonkamer is gelegen aan de voorzijde van de woning en geeft voldoende ruimte voor een riante zithoek. Door het grote hoekraam heeft de kamer veel lichtinval.

Verder beschikt de woonkamer over een design airconditioning. We zijn zeer benieuwd of u hem kunt vinden.

Aan de achterzijde van de woning treft u de eetkamer en keuken. De keuken is uitgevoerd in wandopstelling en voorzien van een 5- pits gaskookplaat, afzuigkap, vaatwasser, koel-vriescombinatie, combioven (2024) en grote dubbele lades voor veel opbergruimte.

Via de keuken heeft u toegang tot de achtertuin en tot de garage.

De garage is voorzien van een kastenwand (ter overname), elektrische garagedeur, wateraansluiting en een loopdeur naar de achtertuin.

De gehele begane grond is voorzien van een houten vloer. Ook is er een vloerverwarming installatie aanwezig. Deze is nu niet in gebruik i.v.m. de houten vloer.

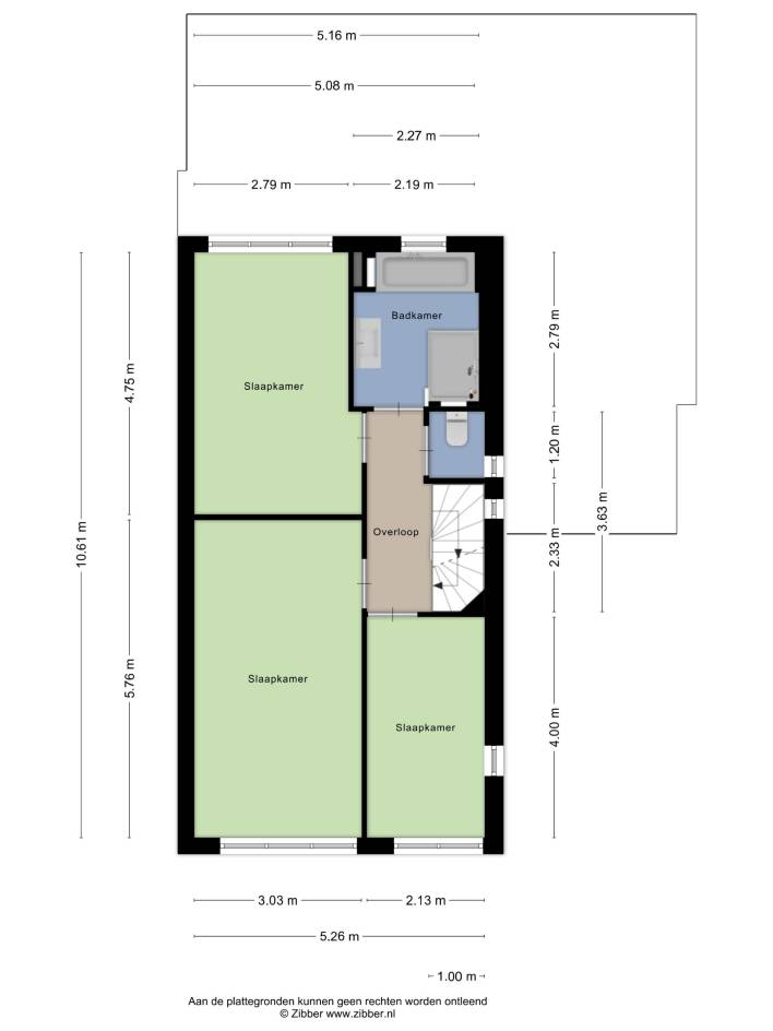
EERSTE VERDIEPING:

Overloop, 3 slaapkamers, badkamer en separaat toilet. Aan de voorzijde van de woning bevindt zich de ruime masterbedroom voorzien van airconditioning. Aan de voorzijde bevindt zich tevens de 2e slaapkamer. De 3e slaapkamer is gelegen aan de achterzijde van de woning.

De luxe badkamer (2017) is van alle gemakken voorzien en beschikt over een ligbad, ruim wastafelmeubel, spiegel met verlichting, design radiator en ruime inloopdouche met glazenwand, shampoo-nis, bankje, hand- en stortdouche.

Het separate toilet op de overloop is volledig betegeld.

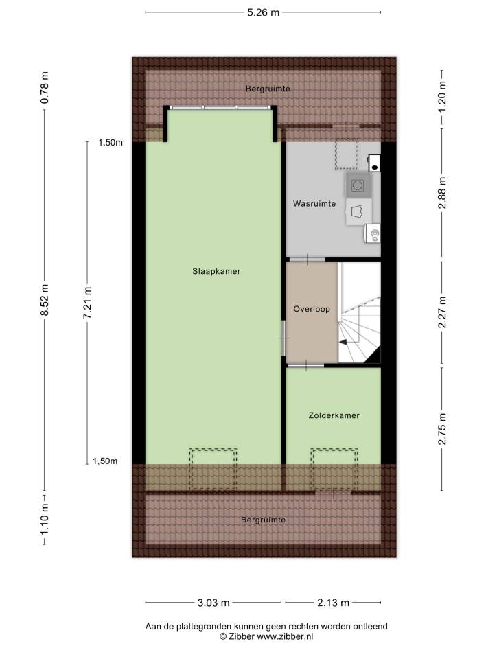
TWEEDE VERDIEPING:

Overloop, 1 grote slaapkamer, kantoorruimte, wasruimte.

De 2e verdieping biedt nog veel mogelijkheden qua indeling. De ruimte is nu ingedeeld met een grote slaapkamer met airconditioning met aan de voorzijde een groot (Velux)dakraam en aan de achterzijde een grote dakkapel. De ruimte zou eenvoudige ingedeeld kunnen worden in 2 ruime slaapkamers. Via de overloop heeft u toegang tot wasruimte met klein dakraam en cv-ketelopstelling (Vaillant/ 2014). Aan de voorzijde bevindt zich een 3e kamer met groot dakraam. Deze kamer zou voor veel verschillende doeleinden gebruikt kunnen worden denk aan een kantoortje, inloopkast of speelkamer.

BUITEN:

De woning is aan de voorzijde gelegen aan een autoluwe laan met parkeerruimte voor meerdere auto’s op de eigen oprit. De ruime inpandige garage heeft een elektrische garagedeur. De zonnige achtertuin op het oosten heeft een sfeervolle overkapping, diverse groenborders en een achterom. De tuin is voorzien van een schutting op betonpalen.

KENMERKEN:

- Zeer ruime 2^1 kapwoning

- Maar liefst 4 slaapkamers aanwezig (5 mogelijk)

- 16 zonnepanelen (installatie klaar voor thuisbatterij)

- Tuin op het oosten met sfeervolle overkapping

- Oprit met ruimte voor meerdere auto’s en laadpunt voor elektrische auto

- Garage met elektrische deur

- Houten kozijnen met dubbele beglazing

- De woning is volledige geïsoleerd

- Vaillant CV- combiketel uit 2014

- Perceel: 265 m2 eigen grond

- Woonoppervlakte: circa 158 m2

- Inhoud:circa 647m3

- Bouwjaar: circa 1999

Stel een vraag over dit huis

Copyright 2026 - Greveling Makelaardij & Taxaties - Privacy Policy