Willem de Kooning Allee 59

te Rhoon

€ 595.000,-- Kosten Koper

Verkocht

Een NIEUWBOUWHUIS kopen zonder wachttijd en dubbele maandlasten? Dat kan! Deze schitterende eengezinswoning in het stijlvolle project “Essendael het Uitzicht”

In het gezellige dorp Rhoon is perfect voor u! De woning beschikt over 3 verdiepingen. Via de voortuin of via de overdekte parkeerplaatsen aan de achterzijde heeft u toegang tot de woning. Op de 1e verdieping treft u de ruime woonkamer met openkeuken en openslaande deuren naar het terras. Op de begane grond bevindt zich een slaapkamer, badkamer en de berging. Op de 2e verdieping treft u twee slaapkamers. De masterbedroom heeft een badkamer en suite. Het huis wordt opgeleverd met divers meerwerk o.a.: luxe schakelmateriaal, luxe uitgevoerde trap met stalen armleuningen, extra voorzieningen voor wasmachineaansluiting in de berging, badkamer en suite in de masterbedroom. Verder beschikken de woningen over een gezamenlijk leefdek met toegang tot de woningen en de overdekte parkeerplaatsen. De locatie van woonwijk “Essendael” is ideaal voor gezinnen: op loopafstand van winkels, verschillende basisscholen en het metrostation, maar ook dichtbij de natuur van de polders en de sportvelden.

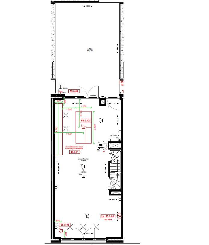
INDELING:

BEGANE GROND

Op de begane grond kom je binnen in de hal. Hier is de berging/techniekruimte met wasmachinevoorzieningen. Verder is hier een badkamer, toilet en een slaapkamer.

1E VERDIEPING

Woonkamer met open keuken en via de openslaande deuren toegang tot het terras op het zuiden.

2E VERDIEPING

Overloop, 2 slaapkamers en badkamer. De masterbedroom is voorzien van een badkamer en suite.

BUITEN

De woning is voorzien van een ruim leefdek op de 1e verdieping gelegen op het zonnige zuiden.

Op de 1e verdieping bevindt zich aan de achterzijde het gezamenlijke leefdek ( welke aansluit op de prive terrassen) gecombineerd met de daarbij behorende trappen en overdekte parkeervoorzieningen wordt gezamenlijk uitgegeven. Hiervoor zal te zijner tijd een Vereniging van Eigenaars worden opgericht. De kosten die hier uit voortvloeien voor onder andere het onderhoud, elektra e.d. worden gezamenlijk door alle eigenaars van de water- en eengezinswoningen gedragen.

KENMERKEN:

- Tegoedbon van ASTO keukens ter waarde van €15.000,-

- Nieuwbouwwoning kopen zonder veel wachttijd;

- Stijlvolle eengezinswoning;

- Achtertuin op het zonnige zuiden;

- Masterbedroom met badkamer en suite;

- Voorzien van extra meerwerk;

- Voorzien van een A ++++ label;

- Voorzien van een parkeerplaats ( 2 auto’s);

- Gedeeltelijk vloerverwarming;

- Bodemwarmte pomp en elektrische boiler;

- De woning is volledig geïsoleerd;

- Oplevering indicatie Q3/Q4 2023;

Perceel 73 m2 eigen grond (voorlopige meting)

Woonoppervlakte circa 147 m2

Inhoud circa 534 m3

Bouwjaar 2023

Stel een vraag over dit huis

Copyright 2026 - Greveling Makelaardij & Taxaties - Privacy Policy