Sleedoorn 111

te Poortugaal

€ 759.000,-- Kosten Koper

Verkocht

Ruime 2-onder-1-kapwoning met hoogwaardige afwerking, eigen oprit, garage en tuin aan het water.

Bent u op zoek naar een ruime 2-onder-1-kapwoning met luxe afwerking én een tuin aan het water? Dan is Sleedoorn 111 in Poortugaal zeker de moeite waard. Deze goed onderhouden woning beschikt over een moderne open keuken (2023), vier slaapkamers, een royale badkamer en een eigen oprit met garage.

Met onder andere eikenhouten vloeren, een sfeervolle open haard, elektrische rolluiken en tien zonnepanelen is het wooncomfort hier optimaal. Gelegen in een rustige en groene wijk, dichtbij voorzieningen en uitvalswegen. Een ideale woning voor wie ruimte, rust en kwaliteit zoekt.

INDELING:

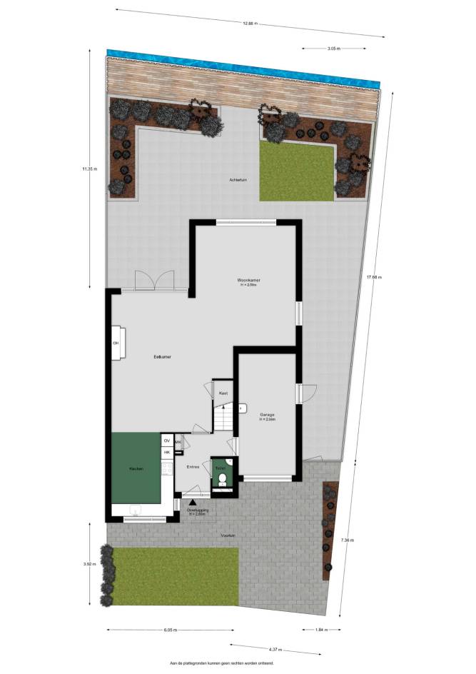
Begane grond: Bij binnenkomst treft u een nette hal met meterkast, toilet en toegang tot de aangebouwde stenen garage. Vanuit de hal bereikt u de zeer ruime, sfeervolle woonkamer, voorzien van een karakteristieke open haard met schouw, gestuukt plafond en openslaande deuren naar de achtertuin. De eikenhouten vloer draagt bij aan de warme uitstraling van deze ruimte.

De open keuken is in 2023 volledig vernieuwd en uitgerust met hoogwaardige inbouwapparatuur, waaronder een koelkast, vriezer, vaatwasser, BORA inductiekookplaat en een ingebouwd koffieapparaat. Een keuken die comfort en design moeiteloos combineert.

1e verdieping:

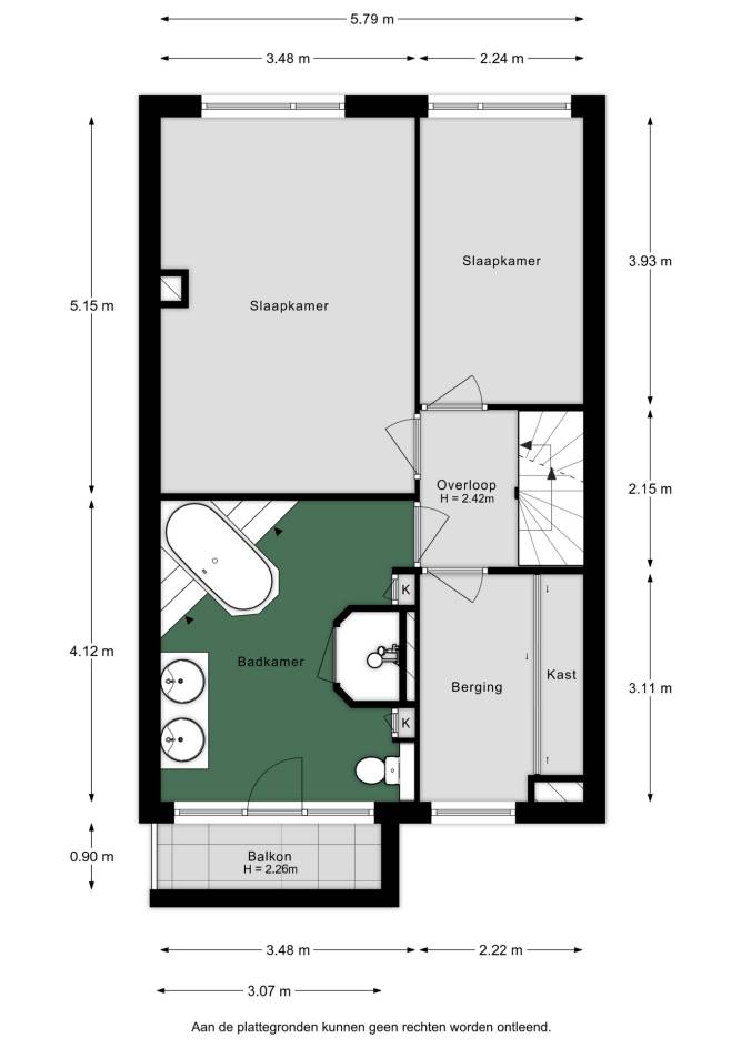
Op de eerste verdieping bevinden zich drie slaapkamers, waarvan één momenteel is ingericht als inloopkast. De hoofdslaapkamer beschikt over airconditioning. De voormalige vierde slaapkamer is omgebouwd tot een bijzonder ruime en luxe badkamer. Deze is uitgerust met een douche, whirlpool, dubbele wastafel en tweede toilet. Vanuit de badkamer heeft u toegang tot het balkon aan de voorzijde van de woning. De gehele verdieping is afgewerkt met een eikenhouten vloer en bereikbaar via een hardhouten trap.

2e verdieping:

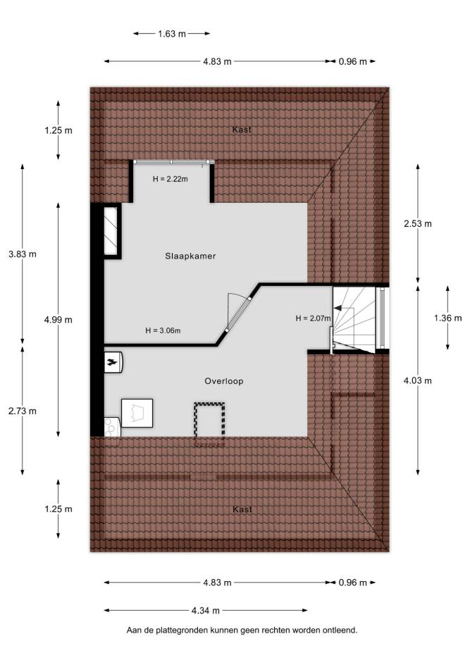
De tweede verdieping biedt een ruime overloop met wasmachineaansluiting en met bergruimte en opstelplaats voor de CV-ketel (bouwjaar 2019). Daarnaast bevindt zich hier een vierde slaapkamer met dakkapel, ideaal als extra slaapruimte, werkkamer of hobbyruimte.

Aan de voorzijde beschikt de woning over een verzorgde voortuin met parkeergelegenheid op eigen erf. De aangebouwde garage biedt extra bergruimte en praktische mogelijkheden. De achtertuin is gelegen aan het water en voorzien van een sfeervolle vlonderpartij – een heerlijke plek om te ontspannen. Dankzij de openslaande deuren vanuit de woonkamer staat binnen in directe verbinding met buiten. Bovendien is de woning voorzien van elektrisch zonnescherm en elektrisch rolluik voor extra comfort en privacy.

KENMERKEN:

? Luxe open keuken (2023) met hoogwaardige inbouwapparatuur;

? Vier slaapkamers (waarvan één met dakkapel, één ingericht als inloopkast);

? Zeer ruime badkamer met whirlpool, douche en balkon;

? Eikenhouten vloeren op alle verdiepingen;

? Open haard met schouw;

? Tien zonnepanelen;

? Elektrisch zonnescherm en rolluik;

? Airconditioning in de hoofdslaapkamer;

? CV-ketel uit 2019;

? Aangebouwde stenen garage;

? Parkeergelegenheid op eigen erf;

? Achtertuin aan het water met vlonder;

? Kindvriendelijke buurt;

? Nabij primaire voorzieningen.

? Perceel: 305 m2;

? Woonoppervlakte: 163 m2;

? Inhoud: 625 m3;

? Bouwjaar: 2002.

Stel een vraag over dit huis

Copyright 2026 - Greveling Makelaardij & Taxaties - Privacy Policy