Mozartlaan 4

te Rhoon

€ 650.000,-- Kosten Koper

Verkocht onder voorbehoud

Vanwege de grote belangstelling zijn alle bezichtigingsmomenten op dit moment volgeboekt.

Indien u belangstelling heeft, kunnen wij u op een reservelijst plaatsen. Wij nemen dan contact met u op zodra er een mogelijkheid tot bezichtigen ontstaat.

Aan de rustige Mozartlaan in Rhoon staat deze ruime en verzorgde semi bungalow met eigen parkeerplaats onder de carport, waar comfort, karakter en praktische indeling samenkomen. Deze woning biedt alle voorzieningen op de begane grond en is hierdoor levensloopbestendig. De woning biedt veel leefruimte, met een lichte woonkamer met sfeervolle houtkachel, een moderne keuken en een slaapkamer met de mogelijkheid tot eigen badkamer op de begane grond. De extra kantoorruimte maakt thuiswerken of een hobbyruimte eenvoudig mogelijk. Op de eerste verdieping vindt u meerdere slaapkamers, waarvan één met airconditioning (2024), en een recent gedeeltelijk vernieuwde badkamer met ligbad en douchecabine. Alles is tot in de puntjes verzorgd en direct instapklaar.

Buiten geniet u van een onderhoudsvriendelijke patio en een ruime achtertuin met

overkapping, bergingen en een kas. Dankzij verbeteringen als gedeeltelijk nieuwe ramen (2023), zonnepanelen, alle platte daken voorzien van nieuw dakleer (2020) en duurzame dakgoten is deze woning klaar voor de toekomst.

Een sfeervolle, energiezuinige woning waar ruimte, rust en gemak samenkomen op

een geliefde locatie in Rhoon.

INDELING:

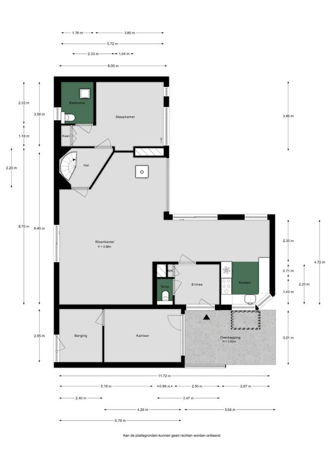
Begane grond:

Via de carport betreedt u de ruime hal met tegelvloer, meterkast en toilet. Via de carport is er ook een aparte toegang tot de kantoorruimte aan de zijkant van de woning ideaal voor thuiswerken of als hobbykamer. Via de kantoorruimte kunt u de aangebouwde stenen berging betreden.

Vanuit de hal betreedt u de gezellige woonkamer die is voorzien van een sfeervolle houtkachel die de gehele benedenverdieping kan verwarmen.

De open keuken aan de voorzijde van de woning is compleet uitgerust met een 5-pits gasfornuis, oven, afzuigkap, vaatwasser, keukenboiler en een losstaande koel-/vriescombinatie.

Via de woonkamer bereikt u een tweede hal met toegang tot de slaapkamer op de begane grond. Deze slaapkamer beschikt over een praktische inbouwkast en biedt directe toegang tot de patio en de badkamer op de begane grond, die is voorzien van toilet, doucheaansluiting en afvoer.

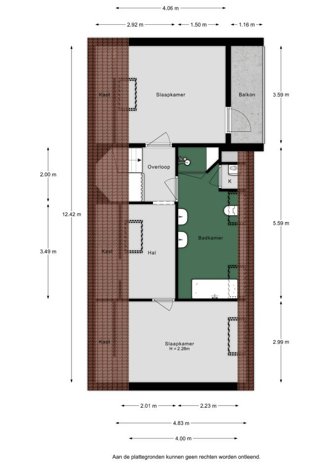
1e verdieping:

De overloop biedt toegang tot meerdere slaapkamers en de ruime badkamer. De slaapkamer aan de voorzijde (zuiden) heeft een deur naar het balkon, voorzien van een hor en is uitgerust met handige bergruimte achter de schotten. Ook de tussenruimte beschikt over extra opbergruimte.

Via de tussenruimte betreedt u de grote slaapkamer die is voorzien van een airco (geplaatst in 2024) en overal is dubbel glas aanwezig.

De royale badkamer is in 2024 gedeeltelijk vernieuwd en voorzien van een ligbad, douchecabine en een onderhoudsvriendelijk kunststof plafond. Dankzij de goede ventilatie en een vernieuwd kantelraam is dit een frisse en

lichte ruimte.

Buiten:

De woning beschikt over een carport met voordeur en deur naar het kantoor.

De onderhoudsvriendelijke patio op het zuiden is sfeervol ingericht en bereikbaar via huiskamer en slaapkamer.

In de grote achtertuin bevindt zich een tuinhuisje met overkapping en heater, perfect om buiten te zitten. Daarnaast is er zowel een houten vrijstaande berging als een stenen berging die aan de woning vastzit en toegang biedt naar de

kantoorruimte.

De woning beschikt over een achterom op het noorden langs het water en een

achterom aan de zijkant; het perceel is daar gescheiden van dat van de buren, zodat

ieder zijn eigen deel heeft. Voor tuinliefhebbers is er bovendien een kleine kas.

De dakgoten zijn in 2020 bekleed met EPDM tevens zijn alle platte daken voorzien van nieuw dakleer (2020) en op het dak liggen 8 zonnepanelen (2021), wat bijdraagt aan lagere energielasten.

KENMERKEN:

• Ruime en verzorgde semi patiobungalow;

• Slaapkamer en badkamer op de begane grond;

• Totaal 3 toiletten en 2 badkamers;

• Lichte woonkamer met sfeervolle houtkachel die de gehele benedenverdieping kan verwarmen;

• Extra kantoorruimte op de begane grond;

• Recent gedeeltelijk vernieuwde badkamer (2024) met ligbad en douchecabine;

• 3 ruime slaapkamers;

• Grote slaapkamer met airconditioning (2024);

• Onderhoudsvriendelijke patio op het zuiden en grote achtertuin met overkapping, meerdere bergingen en een kas;

• 8 zonnepanelen, dubbel glas, vernieuwd dakleer op alle platte daken en dakgoten met EPDM bekleed;

• Kindvriendelijke buurt;

• Het dorpscentrum en metrostation van Rhoon op loopafstand.

Perceel: 401 m2 eigen grond

Woonoppervlak: 147 m2

Inhoud: 602 m3

Bouwjaar 1979

Stel een vraag over dit huis

Copyright 2025 - Greveling Makelaardij & Taxaties - Privacy Policy