Charloisse Lagedijk 904

te Rotterdam

€ 825.000,-- Kosten Koper

Energielabel B | Perceeloppervlakte ca. 725 m² | Woonoppervlakte ca. 144 m²

Karaktervolle dijkwoning met dubbele inpandige garage, royale tuin en veel privacy.

Aan de geliefde Charloisse Lagedijk, op korte afstand van de stad maar met de rust van het groen, staat deze charmante en uitstekend onderhouden dijkwoning met verrassend veel ruimte, een ruime tuin en een praktisch souterrain.

Het huis beschikt over een woonkamer met terras, moderne keuken, 3 slaapkamers en complete badkamer, bergzolder en een souterrain met garage en bijkeuken.

De woning is gelegen op een ruim perceel met een sfeervolle volgroeide tuin.

De tuin beschikt over een eigen oprit met elektrische poort, voetgangerspoortje en parkeergelegenheid op eigen terrein.

Indeling

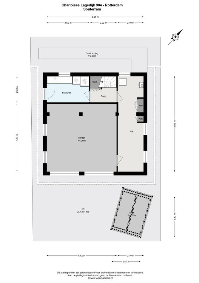
Souterrain

Via de tuin heeft u middels elektrische roldeuren toegang tot het souterrain met een dubbele garage, bijkeuken, hal met wasruimte en een tussenhal met trapopgang. Deze verdieping biedt volop praktische bergruimte en is ideaal voor hobby’s of het stallen van fietsen en gereedschap.

Begane grond

De sfeervolle woonkamer is voorzien van een houtkachel en openslaande deuren naar het terras, waar je geniet van het vrije uitzicht over de prachtige tuin. De gehele begane grond is voorzien van vloerverwarming.

Vanuit de woonkamer is de keuken bereikbaar, uitgerust met diverse inbouwapparatuur en voldoende kastruimte. Verder bevindt zich op deze verdieping de entree vanaf de dijk met hal en toilet.

Eerste verdieping

De overloop biedt toegang tot drie slaapkamers, elk voorzien van vaste kasten. Eén van de kamers beschikt bovendien over een extra inloopkast – ideaal voor kleding.

De moderne badkamer is netjes afgewerkt en beschikt over een hoekbad, inloopdouche, toilet, wastafel en vloerverwarming.

Tweede verdieping

Via de overloop is de bergvliering bereikbaar, die veel extra opbergruimte biedt.

Buitenruimte

De woning beschikt over een ruime, sfeervolle, groene tuin met een oprit en afsluitbare poort. Elke seizoen staat er wel iets in bloei. Dankzij het niveauverschil, de volwassen bomen, struiken, bloemenborders en de groente-/fruitkas ademt de tuin rust en privacy.

Hier is het heerlijk genieten van zon, groen en ruimte en dat midden in Rotterdam!

Kenmerken

-Karaktervolle dijkwoning met verrassend veel leefruimte

-Souterrain met garage, bijkeuken en wasruimte

-De garage/souterrain biedt diverse mogelijkheden voor een praktijkruikte aan huis;

-Woonkamer met houtkachel en openslaande deuren naar terras

-Vloerverwarming op begane grond en in badkamer

-3 slaapkamers met vaste kasten, waarvan 1 met inloopkast

-Moderne badkamer met hoekbad, douche, toilet en wastafel

-Ruime bergvliering met veel extra opbergruimte

-Grote, fraai aangelegde tuin met oprit, kas en niveauverschil

-Perceeloppervlakte ca. 725 m²

-Energielabel B

-Intergas cv-ketel (2022)

-Honeywell Evo Home wireless thermostat (2022) voor het regelen van warmte per ruimte

-Gelegen op korte afstand van winkels, scholen, uitvalswegen, openbaar vervoer en het stadscentrum van Rotterdam

Een unieke kans om te wonen aan één van de mooiste dijken van Rotterdam, waar ruimte, comfort en karakter perfect samenkomen. Deze woning is ideaal voor wie op zoek is naar een rustige woonomgeving met alle voorzieningen binnen handbereik.

Stel een vraag over dit huis

Copyright 2026 - Greveling Makelaardij & Taxaties - Privacy Policy