Blaakse Wetering 71

te Poortugaal

€ 598.000,-- Kosten Koper

Verkocht

Stap binnen in deze fraaie en volledig gerenoveerde eengezinswoning (2018), waar comfort, stijl en kwaliteit naadloos samenkomen. Deze ruime, instapklare woning biedt een luxe woonervaring met een zonnige tuin op het westen en vrij uitzicht over de singel, een beeld dat direct een gevoel van rust en ruimte oproept.

Dankzij de hoogwaardige renovatie is de woning modern afgewerkt en uitgerust met eigentijdse voorzieningen zoals een stijlvolle keuken, nette badkamer, airconditioning, twee inloopkasten, houten vloeren en maar liefst vier royale slaapkamers. Iedere ruimte ademt zorg, afwerking en wooncomfort.

Gelegen in de geliefde woonwijk Valckesteyn in Poortugaal, woon je hier in een heerlijk groene, kindvriendelijke omgeving met het metrostation en de basisschool om de hoek, winkels op fietsafstand en uitstekende verbindingen met de Randstad.

?

INDELING:

Begane grond: De royale woonkamer is voorzien van een fraaie houten vloer en beschikt over openslaande deuren naar de zonnige tuin.

De ruime zit- en eethoek bieden volop plek voor gezellig tafelen en ontspannen. De trapkast geeft extra bergruimte. In de hal bevinden zich de meterkast, een verzorgd toilet met fonteintje en een prachtige moderne stalen deur die toegang geeft tot de woonkamer.

Aan de voorzijde ligt de open keuken, uitgevoerd in twee wandopstellingen met veel bergruimte. Deze moderne keuken is uitgerust met o.a. een 4-pits inductiekookplaat, afzuigkap, vaatwasser, koel-vriescombinatie, stoomoven, brede lades, keramisch aanrechtblad in marmerlook en een glazenwandafwerking voor eenvoud schoonmaken.

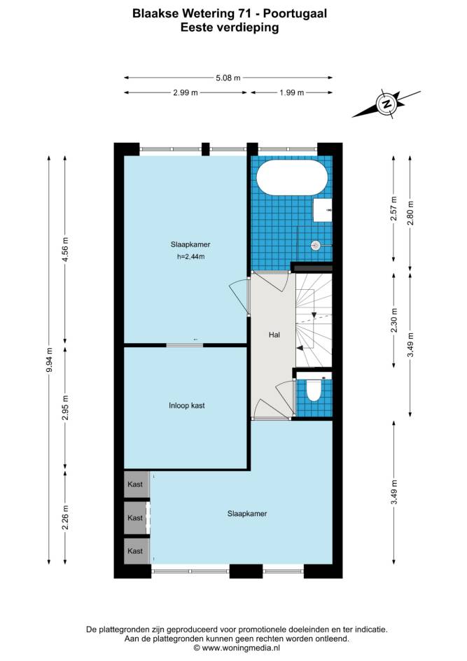
1e verdieping: Op de eerste verdieping bevinden zich twee slaapkamers, een inloopkast en een badkamer.

Op de overloop bevindt zich een apart toilet. Masterbedroom aan de voorzijde met een op maat gemaakte inloopkast. De slaapkamer is voorzien van airconditioning en vloerbedekking. Riante tweede slaapkamer aan de achterzijde, over de volle breedte van het huis, eveneens met een luxe maatwerk schuifwandkast.

De badkamer is volledig betegeld en van alle gemakken voorzien met een doucheruimte met hand- en stortdouche, ligbad, wastafelmeubel en sfeervolle houten shutters.

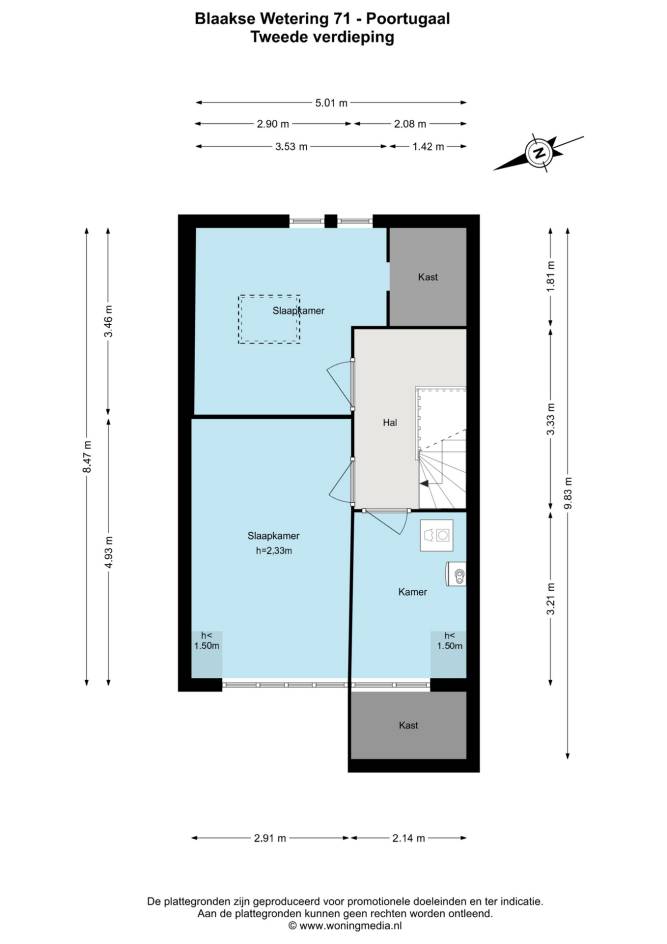
2e verdieping: De tweede verdieping is verrassend ruim met nog eens twee slaapkamers en een aparte wasruimte.

Aan de achterzijde een dakkapel over de gehele breedte, wat zorgt voor veel licht en ruimte. De slaapkamer aan de voorzijde beschikt over een op maat gemaakte inloopkast, een dakraam met Velux-zonwering, hor en shutter.

Buiten: Dit huis heeft een waanzinnige ligging! Door de bordesverhoging waarop de woning gebouwd is, heeft u vrij zicht over de singel aan de voorzijde. Hier is voldoende parkeergelegenheid aanwezig. De fijne achtertuin biedt door de ligging op het westen de gehele middag en avond heerlijk de zon. De achtertuin is aangelegd met bestrating. De achtergevel is voorzien van een zonnescherm en achterin is een grote stenen berging en achterom aanwezig.

KENMERKEN:

• Energielabel B;

• Royale tussenwoning met dakkapel;

• Met 4 ruime slaapkamers;

• voorzien van houten vloeren;

• voorzien van 2 opmaat gemaakte inloopkasten;

• Schitterende ligging aan brede groene singel;

• Ruime en zonnige achtertuin op het westen;

• Grote stenen berging aanwezig (circa 10 m2);

• Op loopafstand van de basisschool en metro;

• Met de metro binnen 20 minuten in hartje Rotterdam;

• Hardhouten kozijnen met dubbele beglazing;

• De woning is volledig geïsoleerd;

• Voorzien va 10 zonnepanelen (huurcontract);

• Remeha CV-combiketel (2018).

Stel een vraag over dit huis

Copyright 2026 - Greveling Makelaardij & Taxaties - Privacy Policy