Ouwelandsestraat 55

te Poortugaal

€ 498.000,-- Kosten Koper

Stijlvolle, instapklare hoekwoning met luxe afwerking, kookeiland, zonnige tuin in een groene omgeving van Poortugaal.

Aan de Ouwelandsestraat 55 te Poortugaal staat deze instapklare verzorgde hoekwoning, gelegen aan de rand van een rustige en groene woonwijk.

Hier woont u in alle comfort: een modern interieur, veel licht, verrassend veel ruimte en een heerlijke tuin met volop privacy. De woning is in 2019 volledig gerenoveerd en verkeert in uitstekende staat, verhuizen zonder klussen is hier absoluut mogelijk. Gelegen om de hoek van het dorpscentrum van Poortugaal en op loopafstand van het metrostation van Poortugaal met directe verbinding naar het stadscentrum van Rotterdam.

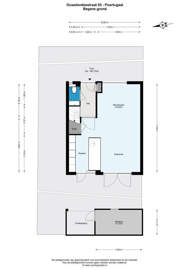
INDELING:

BEGANE GROND: U komt binnen in de nette hal met toilet en meterkast. De lichte woonkamer is sfeervol en ruim opgezet en staat in open verbinding met de keuken.

De moderne open keuken met kookeiland vormt het hart van de woning, perfect voor gezellige diners, borrels en lange avonden samen. De keuken is voorzien van diverse inbouwapparatuur en veel bergruimte. De gehele begane grond is afgewerkt met comfortabele vloerverwarming en onderhoudsvriendelijke kunststof kozijnen met driedubbel glas.

1E VERDIEPING:

Hier bevindt zich een royale master bedroom met slaap- en kleedgedeelte (voorheen twee slaapkamers en eenvoudig weer te splitsen), een tweede slaapkamer of werkruimte en een luxe badkamer.

De badkamer is in 2022 volledig vernieuwd met een ruime inloopdouche, modern wastafelmeubel, toilet en vloerverwarming.

2E VERDIEPING:

Een echte verrassing: een prachtige lichte verdieping met brede dakkapel van circa 5 meter. Deze ruimte is ideaal als extra slaapkamer, thuiskantoor of zelfs twee kamers. Tevens vindt u hier bergruimte en de wasmachineaansluiting.

BUITEN:

De ruime achtertuin biedt veel zon en privacy en is voorzien van een stenen berging. Aan de voorzijde bevindt zich een ruime voortuin met parkeergelegenheid voor 2 auto’s.

KENMERKEN:

• Instapklare hoekwoning met moderne luxe uitstraling;

• Volledig gerenoveerd in 2019;

• Circa 119 m² woonoppervlakte;

• Luxe keuken met kookeiland;

• Luxe badkamer vernieuwd in 2022;

• Vloerverwarming op de begane grond en in de badkamer;

• Dakkapel over vrijwel de gehele breedte;

• Kunststof kozijnen met driedubbel glas;

• Rustige, groene ligging nabij centrum en natuur;

• Vergunning voor garage aanwezig;

• Voorzien van alarm- en camera installaties;

• Energielabel B;

• Volledig geïsoleerd;

• Perceel 200 m2;

• Woonoppervlakte: 119 m2;

• Inhoud: 412 m3;

• Bouwjaar: 1974.

Stel een vraag over dit huis

Copyright 2026 - Greveling Makelaardij & Taxaties - Privacy Policy